Plot 28 The Nidderdale - Laverton Oaks

One of our friendly team members will be in touch soon!

Home | Current Developments | Laverton Oaks | Plot 28 – The Nidderdale (show home)

Plot 28 The Nidderdale

£525,000

4 Bedroom Detached

Property Features:

Well Presented Family Home

Open Plan Living/Dining Room

Kitchen and Utility

Study/Home Office

Downstairs WC and En-Suite to Master

Garage & Parking

Private Landscaped Gardens

10 Year Structural Warranty

Send Enquiry

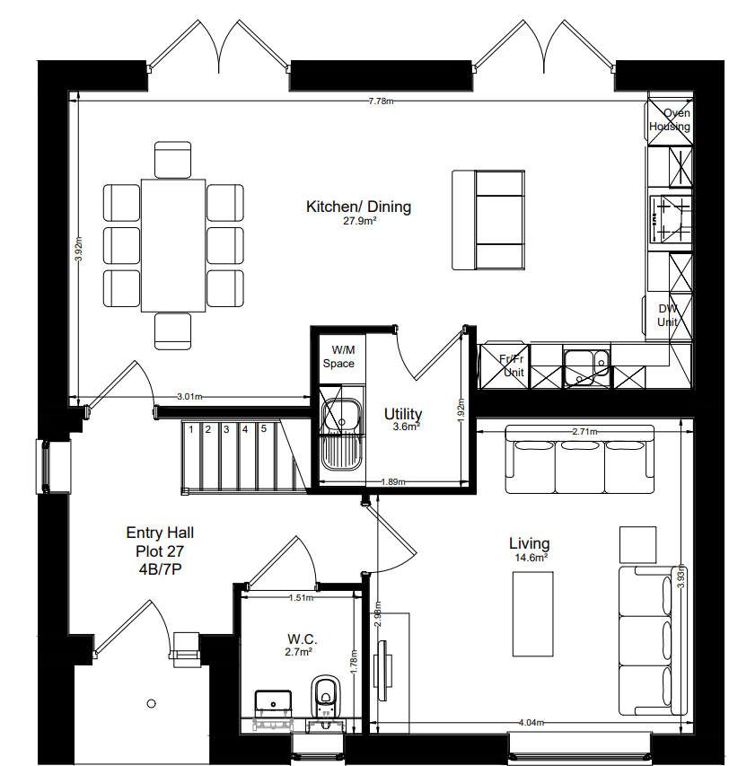
Floor Plans

Dimensions:

Kitchen / Dining 7.78m X 3.92m 25.00" X 12.00"
Utility 1.92m X 1.89m 6.00" X 6.00"
Living Room 4.04m X 2.71m 13.00" X 8.00"
WC 1.78m X 1.51m 5.00" X 4.00"
Send Enquiry

Floor Plans

Dimensions:

Bedroom 1 3.99m X 3.67m 13.00" X 12.00"
En-suite 2.39m X 1.50m 7.00" X 4.00"
Bedroom 2 4.12m X 2.84m 13.00" X 9.00"
Bedroom 3 4.01m X 2.86m 13.00" X 9.00"
Bedroom 4 2.86m X 2.47m 9.00" X 8.00"
Bathroom 2.47m X 1.35m 8.00" X 4.00"
Send Enquiry
Kitchen with grey cabinets and white counter tops

Do you have a question?

View our FAQ’s and get the answers you are looking for

View FAQ's

Register Your Interest
Let us know your email address and the areas you're interested in and we'll send you updates when we have new properties available.

* Required fields